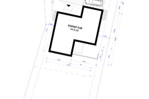
Pozemek je svažitý k západu, v nižší části mírněji. Západní hranici lemuje drobný potok, za kterým se rozprostírá sportovní areál s atletickým oválem místní základní školy. Z jižní strany k pozemku přiléhají plochy s městskou zelení, z východní strany pozemek lemuje komunikace a severní hranici tvoří předěl parcely s rodinným domem.
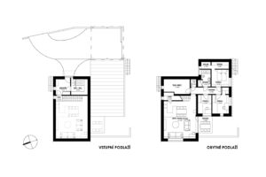
Nově navrhovaný rodinný dům je umístěn při východní hranici pozemku v kontaktu s místní komunikací, ze které je přes stávající chodník navržen nový sjezd do prostoru pro parkování s krytým stáním. Samotný dům tvoří bariéru mezi spodní částí zahrady a vstupním prostorem na pozemek. Dům je navržen ze dvou jednoduchých obdélných hmot, které jsou k sobě přisazeny na střih. Obě části jsou zastřešeny jednoduchou pultovou střechou. Objekt je dvoupodlažní, kde horní podlaží slouží pouze jako vstupní a skladový prostor, ze kterého se vnitřním schodištěm sestupuje do spodního podlaží, kde se nachází všechny obytné místnosti. Z obývacího pokoje je prosklenou stěnou navržen vstup na přidruženou venkovní terasu na navýšeném terénu. Terasu je možno dle potřeby zastřešit mobilní výsuvnou textilní markýzou.
Objekt je navržen jako zděný z tepelně izolačních cihel dodatečně nezateplovaných. Fasádu tvoří svisle orientovaný dřevěný obklad z neošetřeného bezúdržbového modřínového dřeva. Střešní pláště tvoří dřevěná nosná zateplená konstrukce, krytá plechovou barvenou falcovanou krytinou.
Zastavěná plocha RD 141,5 m2
Zastavěná plocha krytého stání 93,4 m2
Celková zastavěná plocha 240 m2
Výměra pozemku 695 m2












