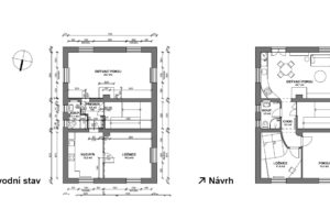
Přeřešením dispozice stísněného bytu v přízemí rodinného domu mělo být dosaženo zvýšení komfortu bydlení pro mladou rodinu. Primárním úkolem bylo vyřešit dispozični vazby tak, aby obě ložnice měly samostatný přistup. Zvolena byla ergonomická varianta, kdy se chodba stáčí a vytváří tak širší prostor v ložnici.
+ Zobrazit celý popis






